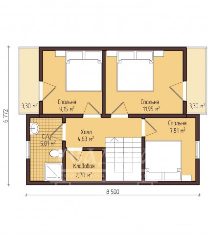
Инь-Янь ............................ 7 х 8 м

Общая площадь: 107 м2

                                                                  ВАЖНО!

Охрана строительства до акта выполненных работ (прописано в договоре).

Один договор на все виды работ. Фундамент, коробка, сети, монтаж, уличные  работы - все в одном договоре подряда. Это важно для заказчика в случае претензий. Все вопросы - к одному договору.

Доставка домокомплекта в пределах 50 км Ярославской области бесплатно.

Доставка и аренда бытовки  бесплатно.

Время сборки коробки дома: 15 - 20 дней.

! Планировку дома, наличие балконов и веранд, размеры дома можно изменить по Вашему желанию!

Стоимость дома из газобетона  и дополнительную информацию узнавать по телефону

                                                            8-902-331-19-33